Aménagement de bureaux – Cour de la Liberté, Lyon
| Maîtrise d’ouvrage | Privé |
| Maîtrise d’œuvre | Studio 99 & Julie Menzel |
| Surface | 160 m² |
| Coût de construction | 100 000 € HT |
| Lieu | Lyon (69) |
| Mission | Base |
| Livraison | Août 2017 |
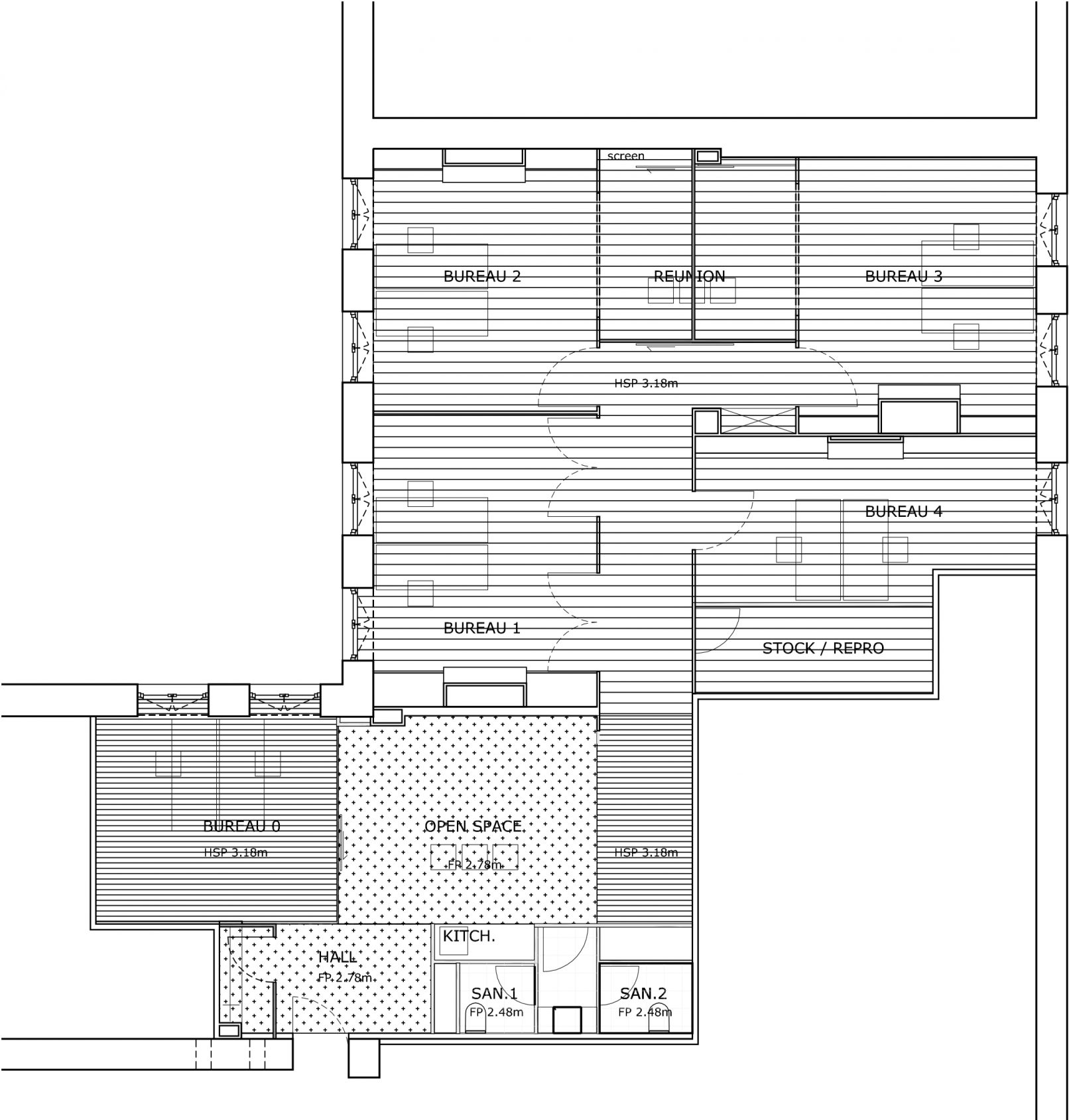
Cet ancien appartement bourgeois, situé dans un immeuble de la fin du XIXe siècle, où se trouvait alors un grand bazar a été entièrement repensé pour accueillir des bureaux. Le souhait des clients étaient de conserver au maximum les détails anciens tels que le parquet en bâton rompus, les cheminées, les fenêtres tout en apportant une ambiance contemporaine et chaleureuse. L’espace d’accueil se trouve encadré par un volume habillé d’un placage bois en pin déroulé contenant les locaux sanitaires, garde robe et technique. Puis, la salle de réunion transparente, se trouvant en face, permet d’éclairer naturellement les autres pièces. Dans cette configuration, le vitrage est traité acoustiquement afin de respecter la confidentialité nécessaire.
L’aménagement des bureaux se veut être minimaliste, et respectueux de l’existant en proposant de rénover le parquet ancien et de mettre en valeur les cheminées. Les menuiseries bois ont été remplacées en respectant les détails de l’époque : le profil mouton/gueule de loup, les espagnolettes ont été déposées et remontées suite à une découpe minutieuse des tableaux. Enfin, le confort thermique est assuré par l’intégration de brise-soleil orientables.






