Construction d’un restaurant scolaire – Sérézin-du-Rhône
| Maîtrise d’ouvrage | Ville de Sérézin-du-Rhône |
| Maîtrise d’œuvre | Studio 99 |
| Surface | 530 m² |
| Coût de construction | 1 300 000 € HT |
| Lieu | Sérézin-du-Rhône (69) |
| Mission | Base + EXE + OPC |
| Livraison | 2020 |
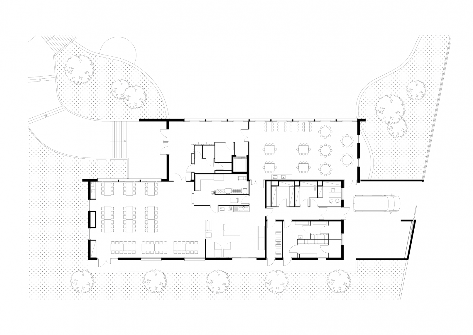
Le projet porte sur la construction d’un restaurant scolaire pour la maternelle de la Souris Verte et pour l’école élémentaire Jean de la Fontaine à Sérézin-du-Rhône. Au Sud de l’école, le projet s’inscrit dans la continuité de la pente du terrain naturel. Notre approche est de tirer parti de cette physionomie afin de différencier les espaces et leurs usages. Situées à l’étage, les salles de restauration sont surélevées par des poteaux en bois, créant ainsi un préau au niveau de la cour de récréation. Un parcours ludique et pédagogique accompagne l’enfant vers l’entrée du restaurant scolaire. Le projet s’accompagne d’une démarche environnementale de gestion des énergies, avec un éclairage naturel dans toutes les pièces, et des ouvertures au Sud maitrisées pour confort thermique performant aussi bien en hiver qu’en été.








