Construction d’un clubhouse et de 4 vestiaires – Grigny
| Maîtrise d’ouvrage | Ville de Grigny |
| Maîtrise d’œuvre | Studio 99 |
| Surface | 436 m² |
| Coût de construction | 1 045 000 € HT |
| Lieu | Grigny (69) |
| Mission | Base + OPC |
| Livraison | Chantier en cours |
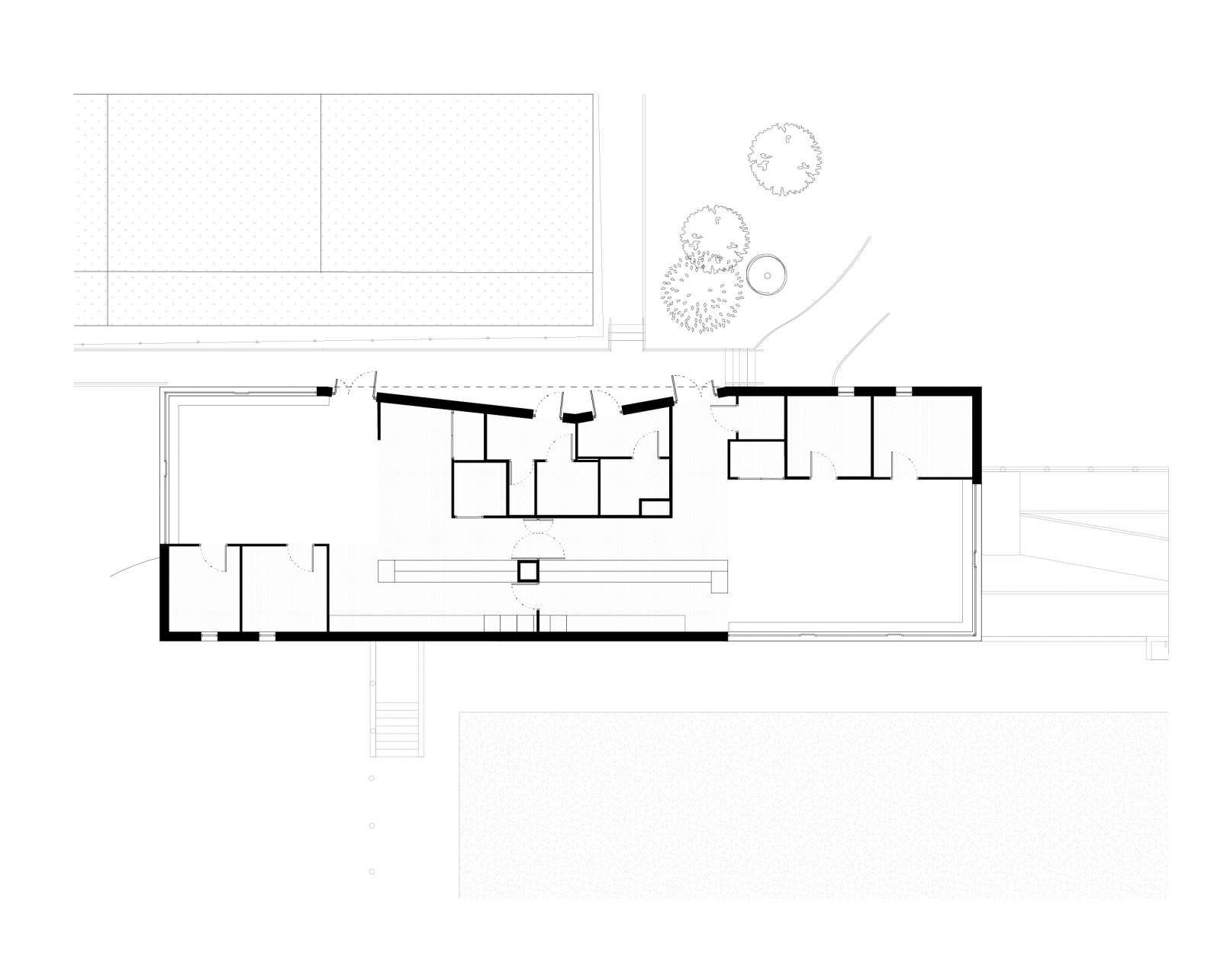
Entre les terrains de football et les terrains de tennis, le bâtiment accueillant les club-houses, des vestiaires et des sanitaires publics se situe dans une zone clé de ce complexe sportif. Initialement installés dans des modulaires, les clubs de football et de tennis de la ville de Grigny profitent aujourd’hui d’espace généreux, lumineux, avec une vue imprenable sur les terrains de jeu respectifs. L’objectif premier de notre intervention était en effet de donner une réelle capacité d’accueil et de convivialité pour ces clubs sportifs. Le club football ayant également besoin de vestiaires, nous avons profité de la déclivité du terrain pour créer un niveau entier de vestiaire au rez-de-chaussée bas, en communication directe avec le terrain d’honneur de football. Les enjeux paysagers, écologiques, de performance thermique, d’entretien et d’économie nous ont immédiatement poussé à créer un seul et même bâtiment pour ces deux clubs qui ont malgré tout besoin d’indépendance. Chaque club a son orientation visuelle sur son espace extérieur, sa propre entrée ainsi que ses propres équipements de cuisine et sanitaires. Nous avons conçu ce bâtiment comme une entité compacte dont les percements orientent où mettent à distance, pour répondre à un programme commun mais contrasté. Le béton brut constituant à la fois la structure et l’enveloppe du bâtiment, le métal assurant le guidage ou les séparations des espaces extérieurs, et le bois composant les aménagements intérieurs (banquettes, faux plafonds, cuisines…), nous avons privilégié des matériaux bruts et pérennes.









