Rénovation de 4 appartements – Rue Thomassin, Lyon
| Maîtrise d’ouvrage | Grand Lyon Habitat |
| Maîtrise d’œuvre | Studio 99 |
| Surface | 758 m² |
| Coût de construction | 179 500 € HT |
| Lieu | Lyon (69) |
| Mission | Base + EXE + OPC |
| Livraison | 2015 |
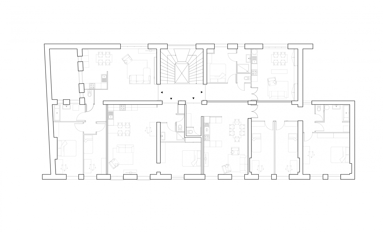
Le projet porte sur la rénovation et la division d’un appartement de 270 m² en 4 logements sociaux. Tout en préservant les murs porteurs du bâtiment, la nouvelle organisation spatiale propose une diversité de typologies allant du T2 au T4.
Les appartements profitent des éléments de modénatures restaurés, telles que les moulures, les corniches, le parquet ancien et les cheminées, le tout mis en valeur par la simplicité des tons utilisés.



